
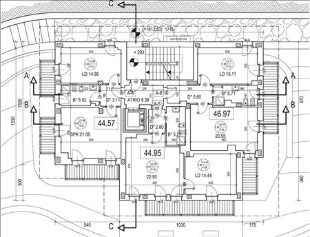
Progetti » Residenze » Baite Borgata Cianfuran a Bardonecchia (TO)
Progettazione di 15 edifici plurifamiliari per 25.000 mc circa e 2 autorimesse interrate in località Gleise/Cianfuran nel Comune di Bardonecchia - Piano Esecutivo Convenzionato di libera iniziativa U.U.I. n.23 del P.R.G.C. (2004 -in corso)






